項目處在粵港澳大灣區的深莞惠交匯處,在深圳更是處于龍崗中心城、國際低碳城、坪山新城三城交匯的東進戰略核心位置,且本項目位于龍城正脈
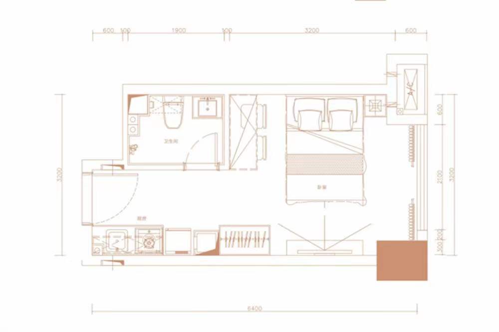
房屋戶型:1室 、2室 、4室 、
住宅類型:
區域:深圳市龍崗坪地街道龍崗大道與吉祥一路交匯處
最新開盤:2020-07-15
立即咨詢
24小時咨詢熱線:13267179661
項目處在粵港澳大灣區的深莞惠交匯處,在深圳更是處于龍崗中心城、國際低碳城、坪山新城三城交匯的東進戰略核心位置,且本項目位于龍城正脈——龍崗大道之上,區位非常優越。3號線延長線、21號線新生站快速到達全城,同時項目自帶10萬平“生態溪谷式”購物中心,且擁有絕佳自然景觀資源,三公園環繞,醫療配套方面也非常完善,三館一城的文體設施,使得您的孩子可以得到較好的文藝熏陶。
主要交通:【地鐵】3號線延長線新生站,21號線新生站
【公交】公交站:坪西路口、龍嶺南路口、香林世紀華府;公交線路:M139路 M308路 M239路 M396路 M279路 M280路 M432路 M219路 811路 862路等
【自駕】龍崗大道,鹽龍大道,還可連通清平高速、南坪快速、梅觀高速、龍大高速、機荷高速、水官高速.戶型種類:.生活配套:【醫療】龍崗中心醫院,手外科醫院,坪地中心醫院
【商業】項目自身配套有10萬㎡的“生態溪谷式”購物中心,萬科廣場10萬㎡購物中心、大運中心8萬㎡cocopark、寶能allcity5萬㎡購物中心等




