服務熱線:何詠斌 聯系方式:13267179661
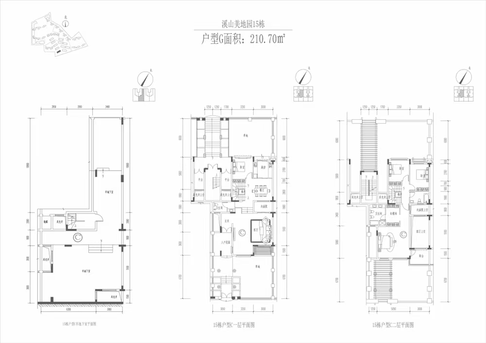
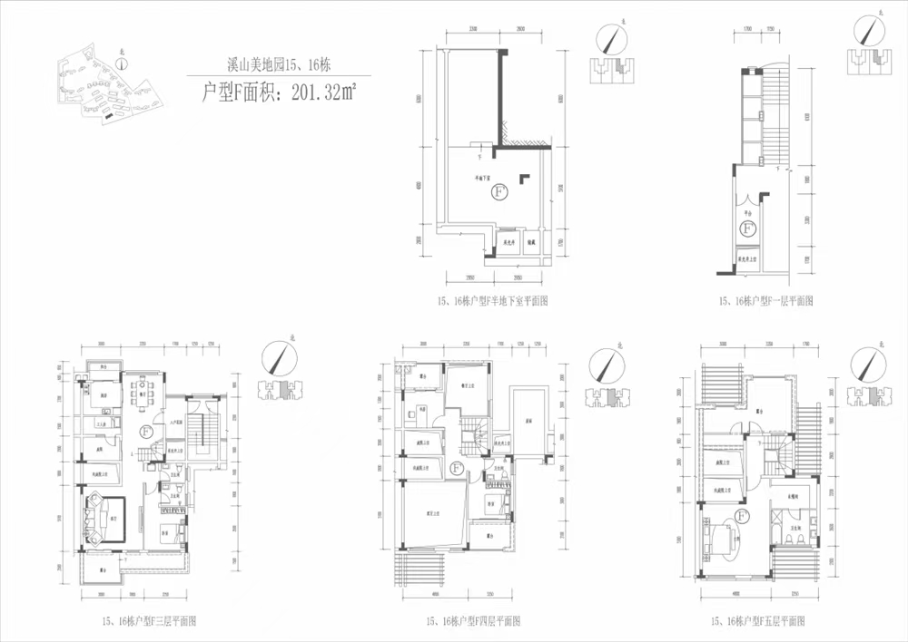
房屋戶型:
住宅類型:精裝修
區域:深圳市龍華區銀湖山麓梅坂大道236號
最新開盤:2023.2.13
立即咨詢
24小時咨詢熱線:13267179661





















服務熱線:何詠斌 聯系方式:13267179661

深圳市龍崗區平湖街道鳳凰大道南
【鳳凰九里】必買心動理由1 平湖樞紐 建面約70萬㎡人文運動大城2 Hi-park超級綠量慢行道系統 賦氧公園大城3 Hi-link活力立體城市連廊 連
深圳市龍華區雅園路與華南路交匯處
1 群湖環繞,享內外湖 低密1 99容積率,低梯戶比,別墅大盤2 王炸配套:COCO Park,8號倉商業配套。萬科雙語,華南實驗9年制學校。3 深圳
深圳市龍華區銀湖山麓梅坂大道236號
服務熱線:何詠斌 聯系方式:13267179661
龍華區觀瀾龍華大道與布新路交匯處
約百萬方濱水大城,大城首發06地塊,早買早享受。華為落址觀瀾;緊鄰銀星科技園、邁瑞醫療,享產業發展紅利。一河七公園環繞,緊鄰民法公園
深圳市龍崗區平湖街道鳳凰大道南
【鳳凰九里】必買心動理由☆平湖樞紐 建面約70萬㎡人文運動大城☆Hi-park超級綠量慢行道系統 賦氧公園大城☆Hi-link活力立體城市連廊 連
深圳市龍華區銀湖山麓梅坂大道236號
執掌深圳北站 福田中心雙EBD10號雅寶站切換全城 1站速達福田五大超級繁華商圈 全維配套齊全四湖一山環伺 風水寶地上善福居約5萬㎡師著
深圳市龍華區雅園路與華南路交匯處
1??群湖環繞,享內外湖 低密1 99容積率,低梯戶比,別墅大盤2??王炸配套:COCO Park,8號倉商業配套。萬科雙語,華南實驗9年制學校。